rainer Heinz

architektur + stadtplanung

    Neue Mitte Dietramszell

     
    2017 Beauftragung Neugestaltung der Ortsmitte - Klostervorplatz - Richteranger - Anger - Umgestaltung Einmündung Staatsstraße zum Dorfplatz - Waldparkplatz
    2019 Ausbau Gehweg Münchener Str. nach Schönegg
    2020 1.BA Waldparkplatz  Realisierung
    2021 2.BA Richteranger geplant, zurückgestellt
    2022 3.BA Neugestaltung Klostervorplatz und Dorfplatz
     
     

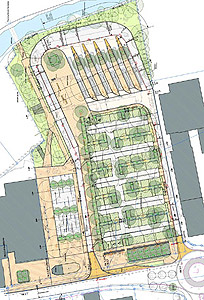
    Wettbewerb Pegnitzquartier Stadt Fürth





    Ideenwettbewerb "Pegnitzquartier" Stadt Fürth
    ein 3.Preis

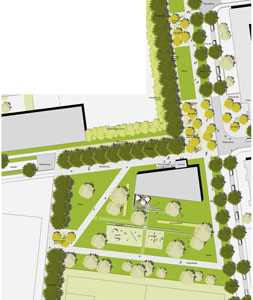
    Ortszentrum Fürstenzell


    Realisierungswettbewerb 3.Preis

    Arge mit T. Frauscher, Landschaftsarch

    Regensburg, St.-Georgen / Schwanenplatz

    3.Rang Realisierungswettbewerb
    mit  Frauscher Landschaftsarchitekt

    • i

      NEUER DORFPLATZ

      Der Platz wird mit dem notwendigen Gefälle zum Schlossparkt aufgeschüttet, sodass ein ebenerdiger Zugang zum neuen Dorfladen im Jagdschloss entsteht und dieses in den Platz mit einbezieht.

      Der dazugehörige Freisitz belebt den Platz.

      Eine niedrige Mauer leitet zum etwas tiefer gelegenen Schlosspark über - so entsteht hier ein „Balkon“.

      Die markanten Bäume des Parks strahlen auf den Platz.

      Die Schauseite der Kirche erhält ein Eingangspodest und wird dadurch sensibel hervorgehoben.

      Die Straße wird in die Platzgestaltung einbezogen und als Teil dessen gesehen.

      Die gepflasterte Platzfläche wird gegliedert durch eine einbeschriebene Fläche mit einer wassergebundenen Decke. Maibaum, die versetzte Martersäule und die „Neue“ Dorflinde ergänzen die Gestaltung.


      So wandelt sich der Kirchenvorplatz zum neuen Ortsmittelpunkt
       

    Ortsmitte Strass, Markt Burgheim

    2.Preis Realisierungswettbewerb
    mit kroitzsch landschaftsarchitektur
     

    • i

      Vor der spätgotischen Filialkirche St. Erasmus wird auf der durch einen Abbruch einens Wohnhauses freigewordenen Fläche ein attraktiver Ortsmittelpunkt geschaffen.


      Ein großzügiger, multifunktionaler und angemessen  begrünter Dorfplatz entsteht, der gleichzeitig die Lage eines ehemaligen Schlosses symbolisch mit Sitzblöcken aufzeigt.


      Die westlich der Kirche gelegene Platzfläche ist gegliedert in einen gepflasterten Bereich, in den eine wassergebunde Decke einbeschrieben ist.


      Der athmosphärische Platzrand mit Sitzbereich am Übergang zum Friedhof wird mit einer Reihe  kleinkroniger Bäume begleitet .

    Dorfplatz St. Erasmus, Waldkraiburg

    Planung im Rahmen der Dorferneuerung
    BA1:  Neuer Dorfplatz
    Architektouren 2014 - ausgewähltes Projekt

    • i

      Der Stadtplatz war zuletzt 1938/39 nach den Erfordernissen einer Hauptverkehrsstraße umgestaltet worden. Die Verkehrsbelastung beträgt ca. 12.000 KFZ/Tag.


      Die Neugestaltung erhöht die Aufenthaltsqualität, stärkt die Identifikation und trägt somit zur Revitalisierung der Innenstadt bei.


      Eine einheitliche Oberfläche aus Granitplatten zieht die verschiedenen Funktionen gestalterisch zusammen und betont so den markanten historischen Stadtraum. Auf trennende Kanten wird soweit möglich verzichtet.

      Die Fläche zwischen dem Gehbereich und der in etwa mittig liegenden Fahrbahn wird  nach Bedarf für verschiedene Nutzungen freigegeben: Parken, Markt, Festveranstaltungen, Gastronomie, Aufenthalt, etc.


      Die Beleuchtung folgt einem innerstädtischen Lichtkonzept. Speziell berechnete Sonderleuchten schaffen eine markante Nachtstimmung.

    Stadtplatz, Eggenfelden

    Realisierungswettbewerb Neugestaltung der Innenstadt  1.Preis
    Neugestaltung Stadtplatz (Moderation/ Runder Tisch zum Gestaltungskonzept)
    arge eggenfelden heinz+müller architekten
    Architektouren BYAK 2013  - ausgewähltes Projekt

    • i

      Der Fischbrunnenplatz mit seinem mittelalterlichen Tor ist der historische Auftakt in die Innenstadt.


      Ergänzt wird der  Bauabschnitt durch die Neugestaltung der angrenzenden Hafner und Kirchengasse, des Vorplatzes vor dem Stadttor und der Einbindung der "Vorstadt", der Straubinger Straße.


      Die Neugestaltung stärkt die Aufenthaltsqualität des vorher vom Verkehr geprägten Platz .


      Die Platzfläche wird als homogene Fläche  mit einheitlichem heimischen Natursteinbelag  belegt. Auf Kanten wird weitgehend verzichtet. Notwendige Markierungen werden reversibel ausgeführt.


      In der Mitte des Platzes wird mit einem Brunnen als Kunstobjekt akzentuiert.


      Die Beleuchtung erzeugt mit seinen eigens berechneten Leuchten eine athmosphärische Stimmung.
       

    Fischbrunnen Platz, Eggenfelden

    Neugestaltung des Auftakts in die Innenstadt
    arge eggenfelden heinz+müller architekten

    • i

      Der Straßenzug um die Innenstadt stellt historisch die erste Erweiterung der Altstadt dar. Die teilweise dörflich geprägte Situation wird städtbaulich aufgewertet, der Wohnwert im Sanierungsgebiet gesteigert.


      BERGSTRASSE: Die neue Fußwegeverbindung zur Stadtmitte wird durch einen aufgepflasterten Fahrbahnstreifen verdeutlicht. Die bislang ca. 2m hohe trennende Stützwand wird unter das zukünftige Niveau abgebrochen und teilweise durch eine grüne Böschung ersetzt. Die Kreuzung im Franziskanerplatz wird richtungsneutral gestaltet. Die talseitige Fußwegeverbindung wird wieder hergestellt.


      Der FRANZISKANERPLATZ wurde von einer großzügig ausgebauten Kreuzung zu einem Areal umgestaltet, das die umliegenden Denkmäler wie Kloster, Kirchen und den Friedhof betont. Er ist wieder als Platz erlebbar. Die Straßen nehmen nun weniger Raum ein, dafür wurde mehr Aufenthaltsqualität für Fußgänger geschaffen und die Gehwege zur Bergstraße großzügig angelegt. Die Gehwege und Seitenflächen sind mit gut begehbarem Naturstein gepflastert, ebenso die Fahrbahn im Bereich des Franziskanerplatzes.


      Die KLOSTERSTRASSE  hat nach der Umgestaltung, bei der auch die Fahrbahn leicht versetzt wurde, nun auf beiden Seiten einen Gehweg. Pflanzarbeiten mit Bäumen werten Straße und Aufenthaltsbereiche erheblich auf.

    Bergstr - Franzisaner Platz - Klosterstr, Eggenfelden

    Neugestaltung eines innerörtlichen Straßenzugs
    arge eggenfelden heinz+müller architekten

    • i

      Die Neuordnung des ZOB am Rand der Innenstadt war dringend erforderlich.


      Der zentrale Hauptsteig mit einem Wartedach für ca 200 Personen führt zu einer erheblichen Verbesserung des ÖPNV. Ein breiter, von Platanen gesäumter Weg hebt die Bedeutung hervor und führt um ZOB.


      Der mit lichten Gleditschien bepflanzte neue Parkplatz  entlastet die Innenstadt.


      Der im 2.Bauabschnitt neu erichtete Vorplatz an der Öttinger Straße markiert den Eingang zur Altstadt. Die Sitzbank aus Betonfertigteilen schirmt  die Parkplätze ab und bietet eine attraktive Aufenthaltsmöglichkeit unter einer Baumguppe.

    ZOB, Eggenfelden

    Parkplätze und Zentraler Omnibusbahnhof
    Realiserung in 2 Bauabschnitten 2007 und 2012
    arge eggenfelden heinz+müller architekten
    Architektouren BYAK 2009 - ausgewähltes Projekt

    • i

      Neugestaltung des Stadtteilzentrums Zellerau im Westen der Würzburger Altstadt.


      Aufgabe war die Schaffung eines neuen zentralen Platzes mit Neubau eines Jugendzentrums, sowie einer Grünachse von der „Neuen Mitte Zellerau“ zum Main.


      Neben den Wegebeziehungen wurden Freiflächen mit Spiel- und Aufenthaltsqualität neu geschaffen, sowie die umliegenden Straßen verkehrsberuhigt und qualitativ verbessert.

    Grüne Mitte Zellerau, Würzburg

    2. Preis
    städtebaulichen und landschaftsplanerischen
    Ideenwettbewerb mit Realisierungsteil
    arge heinz+müller architekten/ Frauscher Landschaftsarchitekt

    • i

      Aufgabe war den verlorengegangenen Charakter dieses traditionsreichen Marktplatzes wieder herzustellen. Durch die Verschiebung der Durchgangsstrasse aus der Platzmitte und der Öffnung und Neugestaltung eines Bachlaufs entstehen atmosphärische, unterschiedlich zu nutzende Platzbereiche. Umgestaltet werden Brunnen und Denkmal, sowie neues Buswartehaus und Kunstwerk zu markanten Akzenten. Die eigens für diesen Ort entwickelte Lichtgestaltung inszeniert eine prägnante und angemessene Nachtwirkung des Platzes. Um die Einheitlichkeit des Raums zu stärken sind die Oberflächen im wesentlichen auf Granit bzw. wassergebundene Decke beschränkt.


      Beleuchtungskonzept

      Wir wollten eine dem ländlichen Charakter des Marktplatzes entsprechende Beleuchtung realisieren. Nicht die gleichmäßige Ausleuchtung nach DIN steht im Vordergrund, sondern die Schaffung einer prägnanten nächtlichen Athmosphäre. Entscheidend ist eine hohe Lichtqualität (Farbtreue) und eine gleichmäßige blendfreie Beleuchtung. Erreicht wird dies durch einen Lichtstreifen längs der Fassaden, die durch den Widerschein des Bodens beleuchtet werden,  sowie als Kontrast die „dunkle Mitte“, die durch Akzentbeleuchtung der wichtigen Bauteile in eine stimmungsvolle Spannung versetzt wird.


      Design Leuchte - heinz architekt

      Lichtdesign - Conceptlicht

      Serienproduktion - Lehner WerkMetall

    Aidenbach Marktplatz

    1. Preis Realisierungswettbewerb
    Neugestaltung Straßen und Plätze der Innenstadt
    Projekt der Architektouren / Bayerischen Architektenkammer
    arge heinz architekt /  Faltermeier Architekt